MDG型吊钩门式起重机
- 发表时间:2026-01-28 16:10:15
- 来源:
- 人气:
单梁吊钩门式起重机产品介绍:
MDG型单主梁吊钩门式起重机由桥架,大车运行机构,小车,电气设备等组成。小车在一根单主梁上运行,通过水平或垂直反滚轮,安*反钩,其运行的安*性。**机械均在司机室内操作,灵活便捷。本机也可配用抓斗。
MDG型单梁吊钩门式起重机适用于露天仓库或铁路沿线进行一般的装卸和起重搬运工作。其工作环境温度-20℃-+40℃。
单梁吊钩门式起重机订购说明:
采购门式起重机请告知以下数据,以便我们能更快确认您的需求!
1、起重量;
2、跨度(轨道中心至导轨中心);
3、起升高度(钩中心接地);
4、是否需要外悬(请提供外悬长度);
5、需要导轨和电缆吗?(请提供运行长度);
6、其他其它要求如果您有更多的详细资料,请告知,我们会更*确的给出价格!
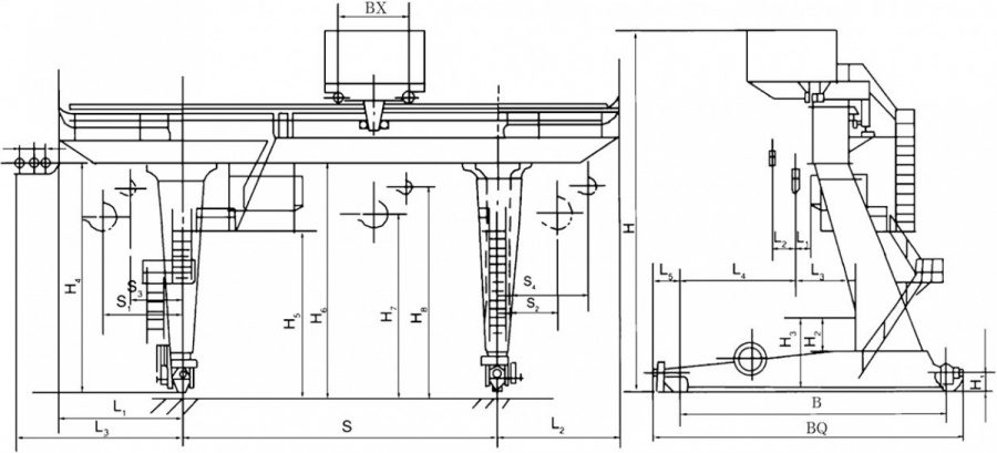
单梁吊钩门式起重机结构简图:

推荐资讯
- 2026-03-27 09:00:43全省经济企稳回升、提质增效―1―4月四川经济数据解读
- 2026-03-27 09:00:4346个上榜!低噪声施工设备指导名录(第一批)
- 2026-03-27 09:00:42“大块头”也能轻量化!我国工程机械行业发展全面提速
- 2026-03-27 09:00:36重磅!上市企业又一超百亿储能电池项目落地!
- 2026-03-27 09:00:36深化合作!徐工与中铁建大桥局共谋高质量发展
- 2026-03-27 09:00:32深化内部协同 | 新天山水泥与中材国际所属企业签署系列战略合作协议
- 2026-03-27 09:00:32工程机械8个品类销量实现同比增长 产品出口表现强劲
- 2026-03-27 09:00:223家水泥企业矿山纳入江西省级绿色矿山名录
- 2026-03-27 09:00:19五省晒出1-4月经济运行“成绩单”工业经济延续向好态势
- 2026-03-27 09:00:18宁夏回族自治区新材料产业补链强链集群态势日益凸显
- 2026-03-27 09:00:03我国首个海上二氧化碳封存示范工程项目投用
- 2026-03-26 09:00:40海底长城!深中通道海底隧道最后沉管开始浮运
- 2026-03-26 09:00:402022年度全国预拌混凝土十强企业授牌
- 2026-03-26 09:00:32共16家!新疆绿色建材示范企业(第一批)名单公示
- 2026-03-26 09:00:32徐工高端零部件产业基地铸钢项目,开工!
- 2026-03-26 09:00:32南方路机与惠州城投智科携手并进,开启智慧搅拌新未来
推荐产品
-
徐工 QY25K5C_2插电 起重机
徐工QY25K5C_2插电起重机具备213kw额定功率和80km/h最高行驶速度,采用插电技术实现节能环保,有效降低燃料成本和减少排放。该设备运行稳定高效,操控简便,显著提升作业效率,延长使用寿命,为 -
三一重工 STC120T5-1(24款) 起重机
三一STC120T5-1汽车起重机具备120吨承载能力和130m/min起升速度,采用先进技术设计,操作简便安全可靠,适用于大型建筑和物流作业需求。 -
三一重工 STC500E插电版 起重机
插电版起重机凭借电动驱动系统实现零排放无污染作业,具备高效节能、灵活便捷、安全可靠等显著优势,运行成本低廉,是现代工程作业的理想选择。 -
三一重工 STC500EPHEV 起重机
这款混合动力汽车起重机具备高效节能、安全可靠的显著优势,配备智能控制系统和多重安全保护,适应多种工况需求,为现代起重作业提供专业解决方案。




